Категории
Кран шаровой стандартнопроходной специальная серия MAX приварной
Характеристики
Макс. температура (Т) °С.: до +200 °С
Мин. температура (Т) °С.: до -60 °С (исп. ХЛ)
Класс герметичности: Класс «А» ГОСТ 9544-2015
Срок службы: 40 лет*
Гарантийный срок: 10 лет
Материалы корпуса: Сталь 09Г2С
Проход: Стандартнопроходной
Присоединение: приварное/приварное
Рабочая среда:
Теплосетевая вода, нефтепродукты, ГСМ и другие рабочие среды, неагрессивные для материалов
деталей крана.
Серия кранов с усовершенствованными техническими характеристиками. Передовые инженерные решения и высококачественные материалы обеспечивают максимальную надежность, долговечность и эффективность на трубопроводах с жидкими и газовыми средами
- Краны имеют все необходимые сертификаты и разрешения
- Уникальная конструкция ремонтопригодной горловины с эффектом самоуплотнения позволяет восстановить уплотнения без демонтажа шарового крана
- Маркировка индивидуального номера крана наносится нестираемым способом согласно ГОСТ 4666-2015 и позволяет идентифицировать кран на протяжении всего срока службы
- Конструкция крана испытана на герметичность в сложных условиях путем сжатия, растяжения и изгиба согласно международным нормам
Примечания:
Все краны до DN 250 включительно поставляются в комплекте с рукояткой. По заказу могут поставляться с редуктором. Краны DN 300 и более
поставляются в комплекте с механическим редуктором по умолчанию.
Iso – по умолчанию установлен iso-фланец
* При условии соблюдения правил эксплуатации.
Модификации
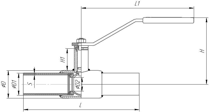
| Артикул | DN | PN | L | L1 | H | H1 | D | D1 | D2 | S | Вес, кг | |
|---|---|---|---|---|---|---|---|---|---|---|---|---|
| 98220015 MAX | 15 | 40 | 200 | 143,8 | 138,8 | 45,8 | 42 | 22 | 10 | 3 | 0,66 | |
| 98220020 MAX | 20 | 40 | 200 | 143,8 | 142,1 | 49,1 | 42 | 27 | 15 | 3 | 0,76 | |
| 98220025 MAX | 25 | 40 | 230 | 143,8 | 144,7 | 48,7 | 48 | 32 | 18 | 3,5 | 1,05 | |
| 98220032 MAX | 32 | 40 | 230 | 143,8 | 149,3 | 48,8 | 57 | 42 | 24 | 3 | 0,63 | |
| 98220040 MAX | 40 | 40 | 250 | 243 | 145 | 47,6 | 60 | 48 | 30 | 4 | 2,19 | |
| 98220050 MAX | 50 | 40 | 270 | 243 | 153,5 | 48,1 | 76 | 57 | 40 | 3 | 2,48 | |
| 98220065 MAX | 65 | 25 | 280 | 243 | 159 | 47,6 | 89 | 76 | 48 | 3,5 | 4,46 | |
| 98220080 MAX | 80 | 25 | 280 | 277,6 | 194 | 69,4 | 114 | 89 | 63 | 4 | 5,15 | |
| 98220100 MAX | 100 | 25 | 300 | 277,6 | 203 | 69,6 | 133 | 108 | 75 | 5 | 7,15 | |
| 98220125 MAX | 125 | 25 | 330 | 526 | 179,3 | 61,3 | 180 | 133 | 100 | 5 | 13,29 | |
| 98220150 MAX iso | 150 | 25 | 360 | 526 | 195,8 | 58,3 | 219 | 159 | 125 | 6 | 17,84 | |
| 98220200 MAX iso | 200 | 25 | 430 | 526 | 216 | 51,5 | 273 | 219 | 148 | 8 | 30,6 | |
| 98220250 MAX iso | 250 | 25 | 510 | 1019,5 | 275,6 | 51,8 | 351 | 273 | 200 | 8 | 64,67 | |
| 98220300 MAX iso | 300** | 16/25 | 730 | - | 431,5 | 103,5 | 426 | 325 | 240 | 10 | 135,17 | |
| 98220350 MAX iso | 350** | 16/25 | 730 | - | 512 | 101 | 530 | 377 | 300 | 10 | 231,8 | |
| 98220400 MAX iso | 400** | 16/25 | 860 | - | 512 | 101 | 530 | 426 | 300 | 10 | 282,00 | |
| 98220500 MAX iso | 500** | 16/25 | 970 | - | 635 | 105 | 630 | 530 | 390 | 10 | 479,9 | |
| 98220600 MAX iso | 600** | 16/25 | 1143 | - | 695 | 104 | 820 | 630 | 500 | 10 | 878,2 |