Категории
Кран шаровой стандартнопроходной специальная серия MAX резьбовой
Характеристики
Макс. температура (Т) °С.: до +200 °С
Мин. температура (Т) °С.: до -60 °С (исп. ХЛ)
Класс герметичности: Класс «А» ГОСТ 9544-2015
Срок службы: 40 лет*
Гарантийный срок: 10 лет
Материалы корпуса: Сталь 09Г2С
Проход: Стандартнопроходной
Присоединение: резьбовое/резьбовое
Серия кранов с усовершенствованными техническими характеристиками. Передовые инженерные решения и высококачественные материалы обеспечивают максимальную надежность, долговечность и эффективность на трубопроводах с жидкими и газовыми средами
Рабочая среда:
Теплосетевая вода, нефтепродукты, ГСМ и другие рабочие среды, неагрессивные для материалов
деталей крана.
Краны имеют все необходимые сертификаты и разрешения
Уникальная конструкция ремонтопригодной горловины с эффектом самоуплотнения позволяет восстановить уплотнения без демонтажа шарового крана
Маркировка индивидуального номера крана наносится нестираемым способом согласно ГОСТ 4666-2015 и позволяет идентифицировать кран на протяжении всего срока службы
Конструкция крана испытана на герметичность в сложных условиях путем сжатия, растяжения и изгиба согласно международным нормам
Примечания:
По заказу краны могут поставляться с редуктором.
* При условии соблюдения правил эксплуатации.
Модификации
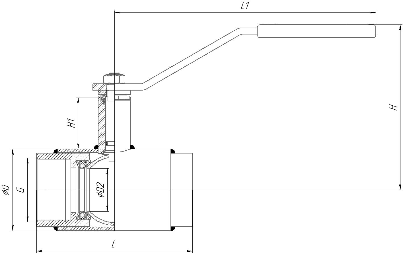
| Артикул | DN | PN | L | L1 | H | H1 | D | G | D2 | Вес, кг | |
|---|---|---|---|---|---|---|---|---|---|---|---|
| 98020015 MAX | 15 | 40 | 100 | 143,8 | 138,8 | 45,8 | 42 | 1/2 | 10 | 0,73 | |
| 98020020 MAX | 20 | 40 | 100 | 143,8 | 142,1 | 49,1 | 42 | 3/4 | 15 | 0,70 | |
| 98020025 MAX | 25 | 40 | 100 | 143,8 | 144,7 | 48,7 | 48 | 1 | 18 | 0,92 | |
| 98020032 MAX | 32 | 40 | 100 | 143,8 | 149,3 | 48,8 | 57 | 1 1/4 | 24 | 1,17 | |
| 98020040 MAX | 40 | 40 | 120 | 243 | 145 | 47,6 | 60 | 1 1/2 | 30 | 1,60 | |
| 98020050 MAX | 50 | 40 | 145 | 243 | 153,5 | 48,1 | 76 | 2 | 40 | 2,49 | |
| 98020065 MAX | 65 | 25 | 190 | 243 | 159,5 | 47,6 | 89 | 2 1/2 | 48 | 3,95 | |
| 98020080 MAX | 80 | 25 | 200 | 277,6 | 193,8 | 69,4 | 114 | 3 | 63 | 5,76 | |
| 98020100 MAX | 100 | 25 | 240 | 277,6 | 203,5 | 69,6 | 133 | 4 | 75 | 10,78 |